| Stavba: | 3i rodinný dom |
| Cena: | Ohľadom ceny nás neváhajte kontaktovať |
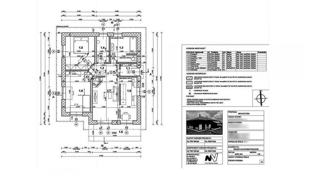
| Úžitková plocha: | 102 m2 |
| Zastavaná plocha: | 104m2 |
| Podlahová plocha: | 102 m2 |
| Kotolňa: | |
| Min. veľkosť pozemku: | |
Small

Popis
Small bungalov
Small bungalov sa vyznačuje modernosťou a veľmi dobrým dispozičným riešením s maximálnou využiteľnosťou úžitkovej plochy domu. Odlišnosť tohto domu spočíva v jeho konštrukčnej jednoduchosti za dodržania atraktívneho a moderného vzhľadu z tradičných materiálov.
Snívate o vlastnom bývaní? S našimi možnosťami financovania sa Váš sen môže stať skutočnosťou.
Tento dom nie je ani príliš malý, aby ste sa v ňom tlačili, avšak ani príliš veľký, aby ste si ho nemohli dovoliť. Vďaka svojej konštrukčnej jednoduchosti a kompaktnému tvaru dosahuje úsporu nákladov pri vykurovaní. Dom má praktickú dispozíciu s množstvom úložného priestoru. Pochôdzková časť podkrovia môže slúžiť na odkladanie ľahších vecí.
Chceli by ste aj vy takýto dom? Realizujeme výstavbu podľa individuálnych projektov, ktoré si v spolupráci s našim projektantom môžete sami navrhnúť. Neváhajte a dohodnite si bezplatnú konzultáciu ohľadom Vášho nového domu.
Našim cieľom je vytvoriť ideálne bývanie pre každého z Vás, teda vyriešiť stavbu rodinného domu podľa Vašich individuálnych požiadaviek, kritérií a možností. Naše domy dodáme podľa Vašich požiadaviek v niekoľkých fázach dokončenia: nízkoenergetický dom – hrubá stavba, holodom, ale aj veľmi obľúbená a využívaná varianta na kľúč v štandardnej výbave.
- Základy - železobetónová doska.
- Steny - keramická tvárnica, polystyrén, omietka.
- Strop - drevený trámový strop.
- Strecha - valbová, drevená, betónová škridla.
- Kotol - plynový, možnosť zmeny na tuhé palivo po adaptácii.


