| Stavba: | polyfunkčný dom |
| Cena: | Ohľadom ceny nás neváhajte kontaktovať |
| Úžitková plocha: | 324,00 m2 |
| Zastavaná plocha: | 170,00 m2 |
| Podlahová plocha: | 315,00 m2 |
| Kotolňa: | 2,8 m2 |
| Min. veľkosť pozemku: | 29 x 16 m |
| Garáž: | 0 m2 |
Centrum polyfunkčná budova
Popis
Centrum polyfunkčná budova
Centrum polyfunkčná budova – Projekt spája všetky atribúty Vášho nového bývania. “ Pod jednou strechou všetko.“ Projekt dvojpodlažnej polyfunkčnej budovy v centre mesta s nízkou strechou s malým spádom, jednoduchou fasádou a veľkými presklenými plochami. Na prízemí sa nachádzajú kancelárske priestory a obchodný priestor. Poschodie je prístupné cez samostatný vstup. Na poschodí sú riešené dva trojizbové byty s veľkými lodžiami a balkónom.
Snívate o vlastnom bývaní? S našimi možnosťami financovania sa Váš sen môže stať skutočnosťou.
Úžasný moderný projekt charakteru polyfunkčná budova, ktorý napĺňa očakávania komfortu tých najnáročnejších investorov. Vytvárajú dynamické podmienky pre symbiózu bývania s ostatnými mestotvornými funkciami. Polyfunkčná budova upúta pozornosť na pôvodnú architektonickú podobu, so vstupným pásom, ktorý je zreteľný vo vzťahu k budove. Moderná charakteristika polyfunkčnej budovy zdôrazňuje pôsobivé dvojpodlažné zasklenie, ktoré do interiéru prináša veľké množstvo prirodzeného svetla. Rozsiahle priestory nás privedú do príjemnému interiéru. Vo funkčnom usporiadaní sa použilo veľmi odlišné rozdelenie do funkčných zón.
Moderná charakteristika
– domu zdôrazňuje pôsobivé zasklenie, ktoré do interiéru prináša veľké množstvo prirodzeného svetla. Rozsiahla predsieň so šatníkom nás privedie do príjemnému interiéru. Vo funkčnom usporiadaní sa použilo veľmi odlišné rozdelenie do funkčných zón.
Premyslená kompozícia skla v rámci projektu, vedie k zaujímavému efektu prelínaniu okolia a domu.
Chceli by ste aj vy takýto dom? Realizujeme výstavbu podľa individuálnych projektov, ktoré si v spolupráci s našim projektantom môžete sami navrhnúť. Neváhajte a dohodnite si bezplatnú konzultáciu ohľadom Vášho nového domu.
Našim cieľom je vytvoriť ideálne bývanie pre každého z Vás, teda vyriešiť stavbu rodinného domu podľa Vašich individuálnych požiadaviek, kritérií a možností.
Naše domy dodáme podľa Vašich požiadaviek v niekoľkých fázach dokončenia: nízkoenergetický dom – hrubá stavba, holodom, ale aj veľmi obľúbená a využívaná varianta na kľúč v štandardnej výbave.
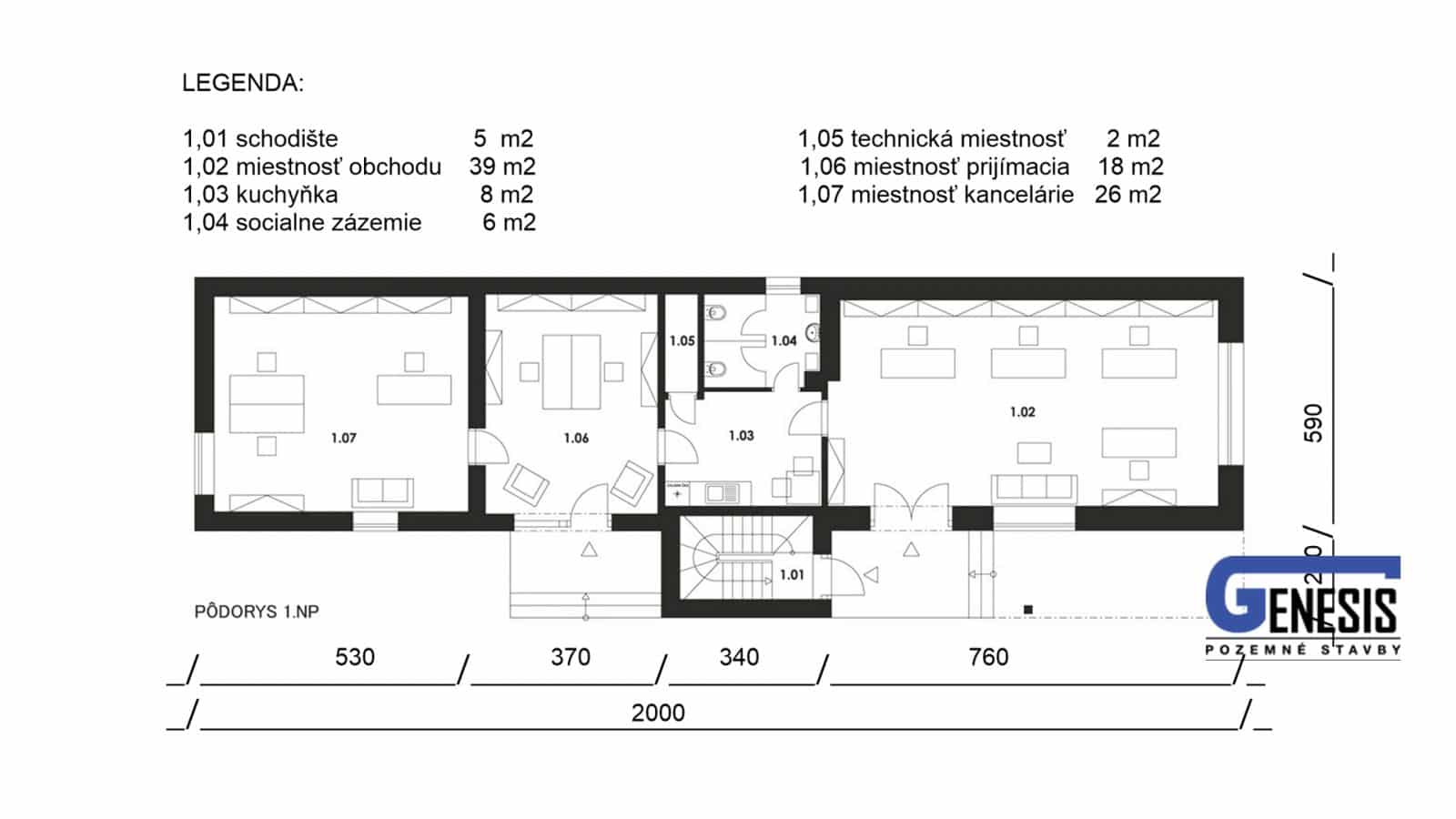
INTERIÉR PRÍZEMIA
Na prízemí sa nachádzajú dva samostatné kancelárske priestory a obchodný priestor so samostatnými vstupmi.
INTERIÉR POSCHODIA
Poschodie je prístupné cez samostatný vstup. Na poschodí sú riešené dva trojizbové byty s veľkými lodžiami a balkónom.
Pôdorys
3D pôdorys prízemie
3D pôdorys poschodie
- Základy - železobetónová doska.
- Steny - keramická tvárnica, polystyrén, omietka.
- Strop - drevený trámový strop.
- Strecha - valbová, drevená, betónová škridla.
- Kotol - plynový, možnosť zmeny na tuhé palivo po adaptácii.
























































